間取り変更して使いやすい間取りに。
1.お客様のご要望
古家を父母に住んでもらうためにリフォームしました。
部屋は細かく仕切られた間取りで使いにくいため、使いやすい間取りにしたい。
2.スタッフからのご提案
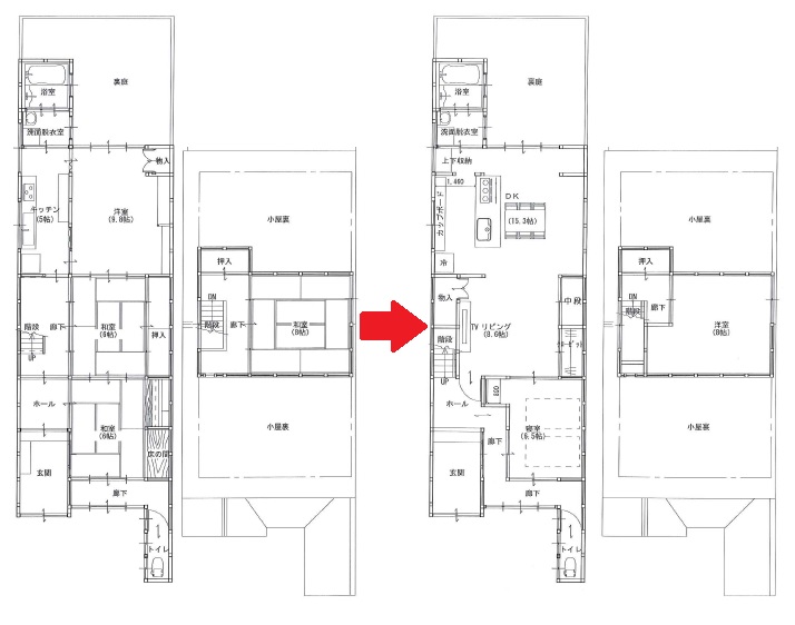
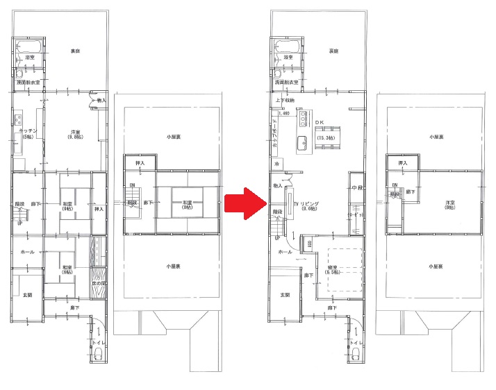
細かく仕切られた間取りは使いにくく移動も大変なので、使い勝手がよくなるように間取り変更をしました。
1階はキッチン+3部屋を、LDK+寝室にしました。
白蟻による被害、床下などの腐食もありました。
耐震補強も必要だったためスケルトンからのリフォームになりました。
3.お客様の声
間取変更で使い勝手も良くなり生活しやすいです。
LDKの横に寝室があり、寝室からトイレも近いので安心です。
離れて住んでいた80歳台の両親の今後を考え、自宅の前の築50年以上経っている古家を購入されたS様。父母に住んでもらうためにリフォームしました。
水廻り設備を新しくし使いやすくし、細かく仕切られた間取りを生活しやすい間取りに。階段は急なため、安全に昇降できるようにリフォームしました。
家全体は白蟻による被害があり腐食も進んでいたため、耐震補強も必要でスケルトンからのリフォームになりました。
担当スタッフ:小田


